文章詳情頁
CAD2018圓角矩形怎么畫
瀏覽:158日期:2023-12-12 08:06:25
在CAD中怎么才能畫出帶圓角的矩形呢,下面給新手寫一篇相關的教程讓大家學習一下。希望大家認真看完CAD2018圓角矩形怎么畫的步驟與方法。希望能幫助到大家。
第1步、打開AUTOCAD2018軟件,點擊文件新建,在默認里面點擊矩形或是輸入RECTANG命令創建矩形多段線。

第2步、選擇不要點擊第一個角點,而是點擊圓角(F)或是輸入F空格。

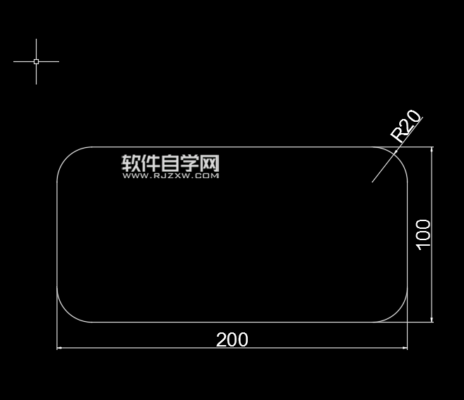
第3步、然后指定矩形的圓角半徑。輸入20空格,也就是繪制出來的矩形圓角就是R20半徑了哦。

第4步、然后指定第一個角點或是輸入X,Y坐標也可以開始繪制。坐標比如:200,200。

第5步、指定另一個角點或是輸入長與寬的坐標,坐標如@200,100,意思是200代表為長度,100代表為寬度。

第6步、如果繪制出來的就是200x100的矩形出來,而且還是圓角為R20的矩形。效果如下:

以上就是介紹CAD2018圓角矩形怎么畫的方法與步驟,喜歡的朋友可以一起來關注好吧啦網學習更多的CAD初學入門教程。
以上就是CAD2018圓角矩形怎么畫,希望大家喜歡,請繼續關注好吧啦網。排行榜

網公網安備