文章詳情頁
UG10.0怎么偏移草圖的矩形
瀏覽:171日期:2024-05-01 17:49:26
下面給大家介紹的是UG10.0怎么偏移草圖的矩形的方法,喜歡的朋友可以一起關注好吧啦網學UG更多的知識哦!
第1步、打開UGNX10軟件,點擊新建,點擊模型,取名稱點擊確定。

第2步、點擊草圖,選擇XY平面,點擊確定。

第3步、點擊矩形工具,選擇矩形方法,也輸入模式。設置寬度為100x高度55mm。

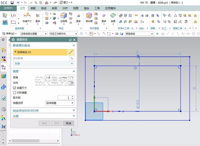
第4步、繪制好了,點擊菜單,插入,草圖曲線,偏置曲線。

第5步、選擇曲線就是矩形,設置偏置的距離,副本設置1,效果就出來了。

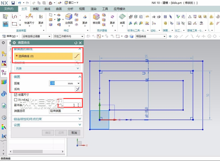
第6步、如果要向內偏移,那距離設置負數。

第7步、就這樣草圖的矩形就偏移出來了。

上一條:sw五角星怎么畫下一條:UG10.0怎么給實體陣列呢?
相關文章:
排行榜

網公網安備