文章詳情頁
CAD怎么標注多重引線
瀏覽:205日期:2023-12-12 11:02:17
在CAD圖形說明中,常常要用引線進行說明,或是使用多重引線說明。遇到很多CAD新手都不會這個多重引線怎么標注問題,我們特意寫了下面的文章,介紹一下CAD怎么標注多重引線的使用方法與步驟。喜歡能幫助到大家。
第1步、打開CAD2019軟件,繪制好相關的平面圖后,要進行文字說明。那我們點擊注釋版塊。找到多重引線。或是在命令欄上輸入MLEADER命令后,空格。

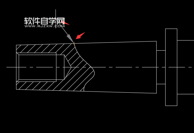
第2步、指定引線箭頭的位置。隨便捕捉端點或是別的參照點就可以了。

第3步、然后向上拖動。注意的是,拖的大一些,箭頭才回出來。拖的小,箭頭是不回出來的。這個要自已測試一下,就能把握這個度。

第4步、然后再輸入說明內容,輸入什么呢,這就要看你想說什么呢,一般是加工要求或是技術要求等說明。

第5步、說明輸入完后,點擊關閉文字編輯器。也就是確定輸入好的內容。

第6步、這樣文字的多重引線注標就標好了。你也可以試一試哦。

以上就是CAD怎么標注多重引線的方法與步驟,喜歡的朋友可以一起來關注好吧啦網學習更多的CAD初學入門教程。
以上就是CAD怎么標注多重引線,希望大家喜歡,請繼續關注好吧啦網。上一條:CAD多重引線怎么添加引線下一條:用AI鋼筆工具怎么畫小腳印
排行榜

網公網安備